• [

    作品集

    ]

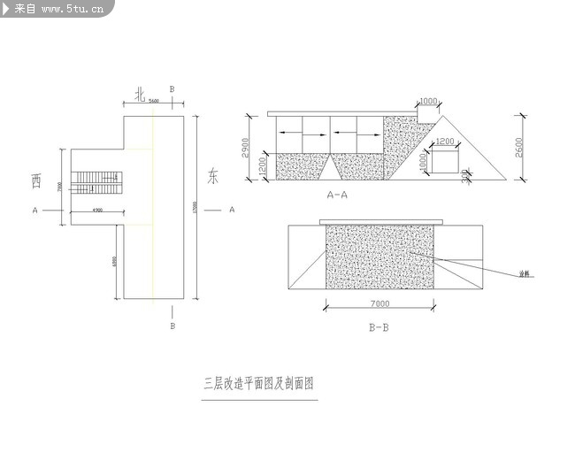
    CAD别墅三视图

    设计作品内容: jpg格式的

    壁肯山B4别墅.jpg (29.49 KB)

    CAD别墅三视图

    下载币 +1 枚 
    --------------------------------------------------------------------------------------------------------------------