• [

    设计书籍

    ]

    幕墙国标图集(03J103-2~7图集)

    本帖最后由 饭小鱼 于 2015-7-17 16:33 编辑

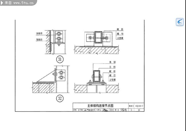
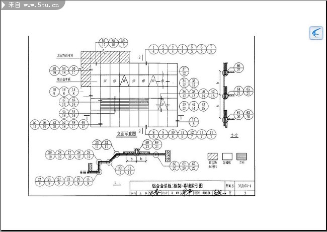
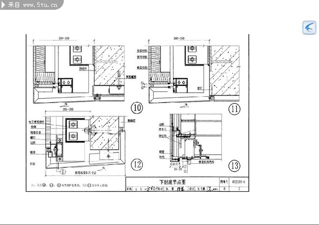
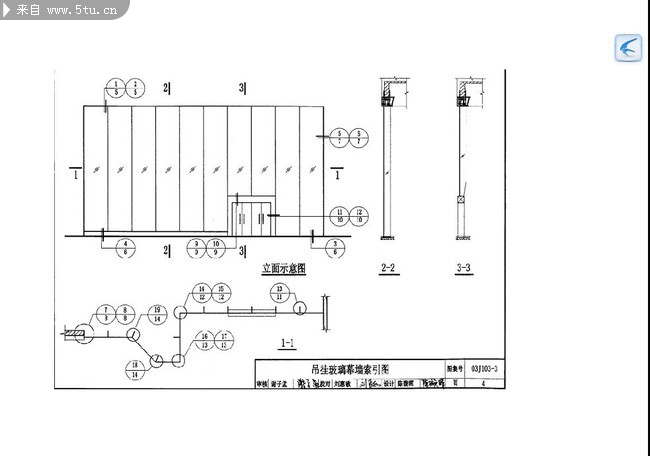
    本公司内部使用图集,PDF电子版。包含各类室外幕墙做法。室外设计师必备资料。
    光缩略图耗用了半个多小时,希望大家支持!

    蝉先晓 于 2010-5-12 13:54 补充以下内容

    缩略图仅为部分,大家不要误会!

    幕墙01.jpg (65.1 KB)

    幕墙国标图集(03J103-2~7图集)

    幕墙02.jpg (67.22 KB)

    幕墙国标图集(03J103-2~7图集)

    幕墙03.jpg (64.11 KB)

    幕墙国标图集(03J103-2~7图集)

    幕墙04.jpg (65.35 KB)

    幕墙国标图集(03J103-2~7图集)

    幕墙05.jpg (71.2 KB)

    幕墙国标图集(03J103-2~7图集)

    幕墙06.jpg (68.04 KB)

    幕墙国标图集(03J103-2~7图集)

    幕墙07.jpg (49.96 KB)

    幕墙国标图集(03J103-2~7图集)

    幕墙08.jpg (62.28 KB)

    幕墙国标图集(03J103-2~7图集)

    幕墙09.jpg (66.71 KB)

    幕墙国标图集(03J103-2~7图集)

    幕墙10.jpg (72.84 KB)

    幕墙国标图集(03J103-2~7图集)

    幕墙11.jpg (76.91 KB)

    幕墙国标图集(03J103-2~7图集)

    幕墙12.jpg (65.05 KB)

    幕墙国标图集(03J103-2~7图集)

    幕墙13.jpg (74.12 KB)

    幕墙国标图集(03J103-2~7图集)

    幕墙14.jpg (71.65 KB)

    幕墙国标图集(03J103-2~7图集)

    幕墙15.jpg (61.63 KB)

    幕墙国标图集(03J103-2~7图集)

    幕墙16.jpg (74.19 KB)

    幕墙国标图集(03J103-2~7图集)

    幕墙17.jpg (72.19 KB)

    幕墙国标图集(03J103-2~7图集)

    幕墙18.jpg (73.99 KB)

    幕墙国标图集(03J103-2~7图集)

    幕墙19.jpg (57.86 KB)

    幕墙国标图集(03J103-2~7图集)

    幕墙20.jpg (82.63 KB)

    幕墙国标图集(03J103-2~7图集)

    幕墙21.jpg (69.94 KB)

    幕墙国标图集(03J103-2~7图集)

    幕墙22.jpg (49.77 KB)

    幕墙国标图集(03J103-2~7图集)

    [源文件下载]www_fl.5tu.cn 下载地址以及密码.rar (1.89 KB 好评度:100%)

    下载本文件将消耗下载币0枚.    

    下载币 +8 枚 
    --------------------------------------------------------------------------------------------------------------------

    图片活动
    网盘下载区